找回密码
 注册
查看: 2279|回复: 3

【求助】关于污染物扩散的问题

[复制链接]
发表于 2011-6-1 17:12:50 | 显示全部楼层 |阅读模式

马上注册,结交更多好友,享用更多功能,让你轻松玩转社区。

您需要 登录 才可以下载或查看,没有账号?注册

x
学习fluent已经有段时间了,相关学习资料也看了一些。最近想做一个路面上污染物扩散的实际应用例子。但是计算得到的结果和实际差距很大,算了好多次都不对。

我的例子是这样的:
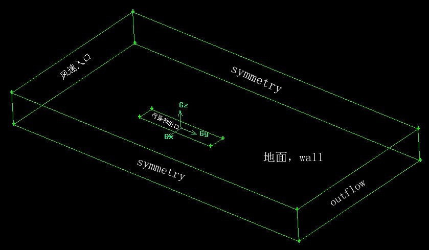
计算区域为立方体,其中一个侧面为风速入口,底面中间的一个长方形区域为污染源,设为质量入口,由于计算区域具有对称特性,两个侧面和顶面都设为symmetry条件,出口设为outflow。

风速为5m/s,污染物选为CO,质量流率为1.5g/s

选择基于压力的求解器,k-e两方程湍流模型和species transport组分输运模型,参数都设为默认值。

这样计算出来的污染物浓度比其他人论文里实测的数据要高1000到10000倍

请高手指教,是不是还要其他的设置啊?

实在找不到问题到底出在哪里,十分苦恼,万分感谢!
gambit_副本.jpg
发表于 2011-6-1 20:09:09 | 显示全部楼层
这个问题看起来貌似不难,仔细检查一下吧
 楼主| 发表于 2011-6-1 20:14:04 | 显示全部楼层

回复 2# kylafree 的帖子

是不难,您看有可能是什么地方设置有问题呢?谢谢!
 楼主| 发表于 2011-6-3 09:48:46 | 显示全部楼层
顶一下,请高手指点啊~~
您需要登录后才可以回帖 登录 | 注册

本版积分规则

快速回复 返回顶部 返回列表