Home
个人中心
广告服务
使用帮助
关于我们
登录
注册
用户名
Email
自动登录
找回密码
密码
登录
注册
搜索
本版
用户
首页
Portal
前沿
动态
人物
会议
工具
论坛
BBS
家园
Space
好友
帖子
收藏
道具
勋章
任务
淘帖
导读
设置
退出
流体中文网
»
论坛
›
软件学习
›
Fluent论坛
›
FLUENT深水区
›
高手请进,问了好多仁兄,没办法解决
返回列表
查看:
1432
|
回复:
0
高手请进,问了好多仁兄,没办法解决
[复制链接]
jin1095832982
jin1095832982
当前离线
积分
90
IP卡
狗仔卡
发表于 2013-11-26 19:53:17
|
显示全部楼层
|
阅读模式
马上注册,结交更多好友,享用更多功能,让你轻松玩转社区。
您需要
登录
才可以下载或查看,没有账号?
注册
x
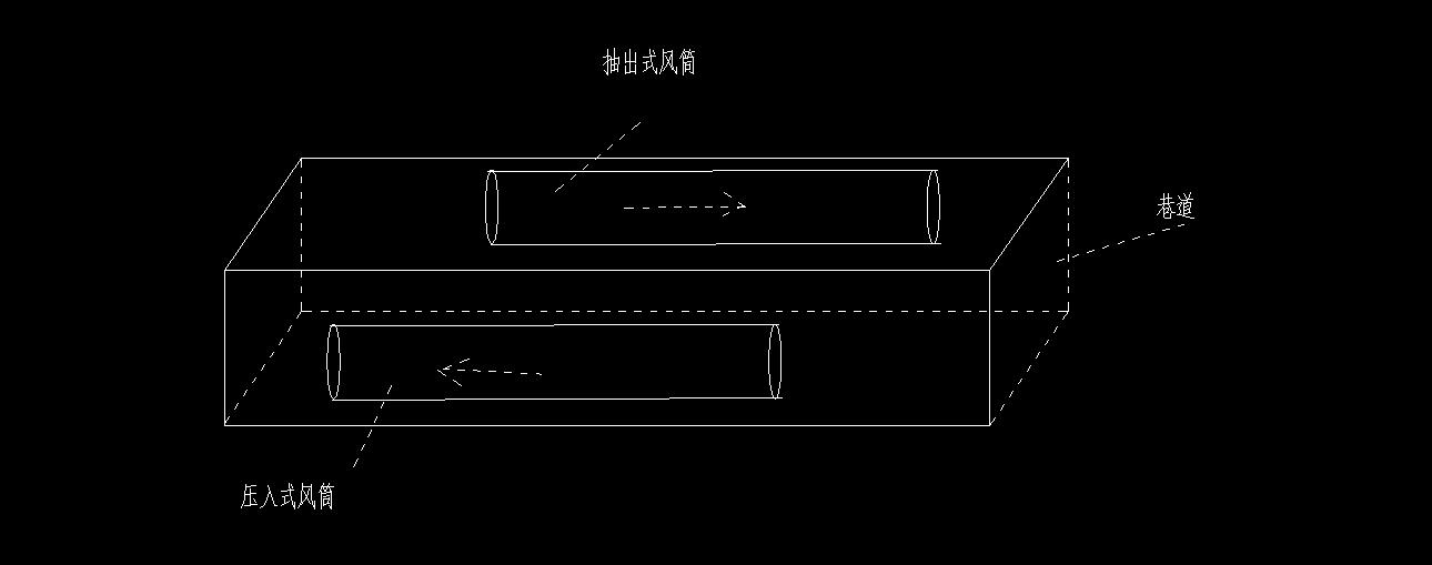
请问大家,这个模型怎么划分网格比较好?
回复
使用道具
举报
提升卡
置顶卡
沉默卡
喧嚣卡
变色卡
显身卡
返回列表
高级模式
B
Color
Image
Link
Quote
Code
Smilies
您需要登录后才可以回帖
登录
|
注册
本版积分规则
发表回复
回帖后跳转到最后一页
浏览过的版块
实验技术与设备
CFD基础理论
会议征文
Fluent论坛
前后处理软件论坛
交通流论坛
ANSYS论坛
能源与动力论坛
多相流论坛
ESI-CFD论坛
快速回复
返回顶部
返回列表